Tetris – Wohnungsbau Adlershof
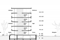
Projektdaten
Standort Berlin – Adlershof
Wettbewerb 2011
Wohnfläche 4000m²
Auslober
Adlershof Projekt GmbH für das Land Berlin
Projektdaten
Standort Berlin – Adlershof
Wettbewerb 2011
Wohnfläche 4000m²
Auslober
Adlershof Projekt GmbH für das Land Berlin