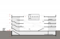
Halle – Dahlmannschule Frankfurt
Neubau einer Grundschule mit Zweifeld-Sporthalle und Schwimmhalle im Passiv-Haus-Standard
Projektdaten
Wettbewerb 2011
2. Rundgang
Auslober
Stadt Frankfurt am Main
Nutzfläche 4.500 qm
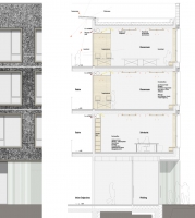
Neubau einer Grundschule mit Zweifeld-Sporthalle und Schwimmhalle im Passiv-Haus-Standard
Projektdaten
Wettbewerb 2011
2. Rundgang
Auslober
Stadt Frankfurt am Main
Nutzfläche 4.500 qm